For Sale

4 bedroom Lockwood style for Removal

140 m² -

QR Code
Property Description

Not often does a house like this come available, get in quick, this will sell.

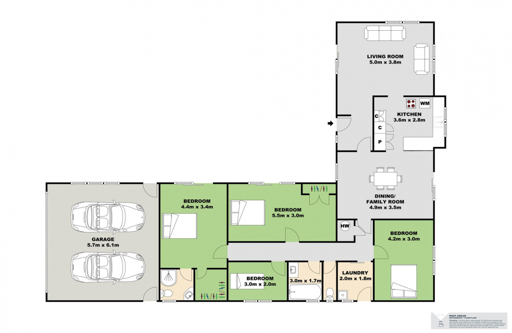
This single level four bedroom home has a simple yet effective floor plan designed for easy family living.

This amazing home consists of 4 bedrooms, master has ensuite with walk in wardrobe, with the other 3 rooms also a good size. Second bathroom has a shower/bath and separate toilet.

Separate lounge, open plan kitchen/dining and separate laundry.

Outdoor living presents options with indoor/outdoor flow from two bedrooms and the dining room to a deck that could be built to optimize your view.

Double garaging at the front of the house is a another bonus.

With the building market the way it is at the moment with delays, get in and secure this home immediately and you could be up and running in a fraction of the time.

The price includes the purchase and relocation of the house onto standard NZ3604 foundations, placed on a flat accessible site within 100km radius. We can go anywhere in NZ, just enquire if your section is further out.

PLEASE NOTE: The new owner will be responsible for laying the new concrete slab for the garage area.
The deck at the back of the house will not be included in the relocation.
This will be a two piece move.

Basic Details
Property Type : House
Listing Type : For Sale
Listing ID : 1006
Price : $160,000
View : Street
Lot Area : 140 m²
House For Sale
  • Listing ID : 1006
  • Lot Area : 140 m²
$160,000
Contact Agent